ImageSlideShow requires Javascript
Büro
Wohnbau
Gewerbebau
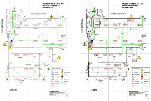
Fluchtweg Pläne
Sanierung
Sonderbauten
Projekte aktuell
Gutachten
Referenzen
Kontakt
Anfahrt
Impressum
zur Gutachter-Seite
www.bau-gutachten.info
Feuerwehr-und-Fluchtplan
Feuerwehr-und-Fluchtplan
Fluchtwegeplan
Fluchtweg Planung